暮らしのエージェントとして、住まい選びをコーディネートします。

受付:10:00~18:00(定休日を除く)

0833-41-6161

売買 新築住宅 - セルリアンステージ下松せせらぎ町一丁目 3号棟 -

 
販売価格

4280万円

間取り・築年数

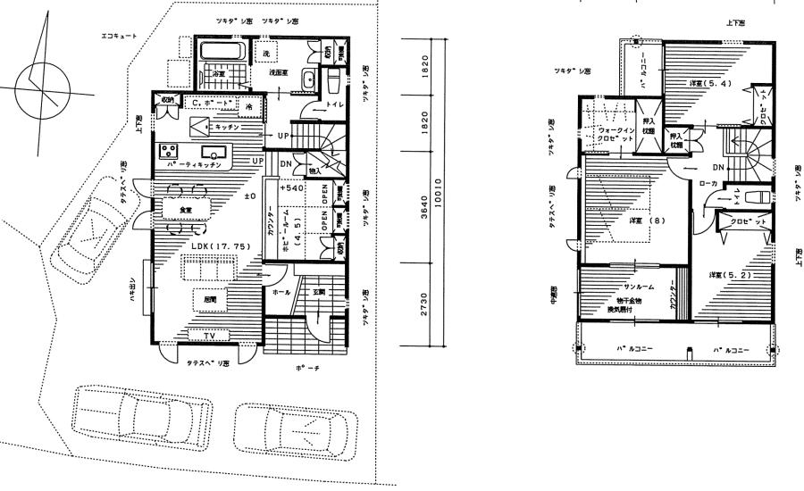
3LDK

2026年8月 (築0年)

その他諸経費

仲介手数料:必要

収入印紙代:必要

住所・交通・学区

下松市エリア

山口県下松市せせらぎ町一丁目

学区:公集小学校 末武中学校

ゆめタウン下松東バス停 徒歩9分

駐車場

駐車場有

3台可

ゆめタウン下松まで徒歩約10分♪
周辺に商業施設が多く便利な立地です♫
印刷 物件お問い合わせ お気に入り追加
物件ID: 1125  管理番号: 1125

電気:中国電力

水道:公営水道

ガス:なし(オール電化住宅)

雨水:側溝

汚水・雑排水:公共下水道

地目
宅地
地勢
平坦
環境
住宅地
都市計画
市街化区域
取引態様
仲介
現況
未完成
用途地域
第1種住居地域
引き渡し
相談
構造材質
木造2階建
土地権利
所有権
土地面積
147.77㎡(約44.70坪)
建物面積
111.78㎡(約33.81坪)
建ぺい率
60%
容積率
200%
接道状況
南側 公道
道路幅員
約16m

特記事項

・ZEH水準省エネ住宅 ・耐震等級5 ・フラット35S(金利Aプラン)対応