暮らしのエージェントとして、住まい選びをコーディネートします。

受付:10:00~18:00(定休日を除く)

0833-41-6161

売買 中古住宅 - 下松市西豊井 一戸建 -

 
販売価格

3480万円

間取り・築年数

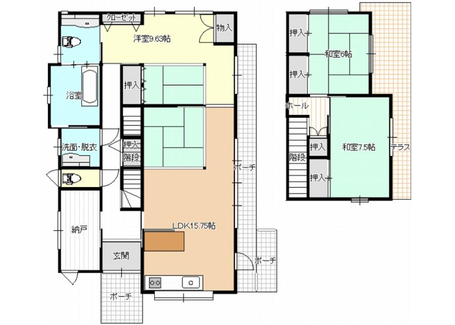
3LDK

1992年10月 (築34年)

その他諸経費

仲介手数料:必要

収入印紙代:必要

住所・交通・学区

下松市エリア

山口県下松市大字西豊井913

学区:下松小学校 下松中学校

山陽本線 下松駅 徒歩9分

駐車場

駐車場有

人気の下松小校区♪
家族の”これから”を育む、優しいお住まい♬
バリアフリー仕様!で、どの世代にも優しい家♪
希少物件です!
印刷 物件お問い合わせ お気に入り追加
物件ID: 1087  管理番号: 1087

電気:中国電力

水道:公営水道

ガス:都市ガス

汚水・雑排水:公共下水道

地目
宅地
地勢
平坦
法令上の制限
準防火地域
環境
商業地
都市計画
市街化区域
取引態様
媒介
現況
空家
用途地域
商業地域
引き渡し
相談
構造材質
軽量鉄骨造2階建
土地権利
所有権
土地面積
344.20㎡(約104.12坪)
建物面積
146.88㎡(約44.43坪)
建ぺい率
80%
容積率
400%
接道状況
南西側
道路幅員
約16m

特記事項

現状渡し
リフォーム費用及び解体費用にかかる費用は一部相談可です