暮らしのエージェントとして、住まい選びをコーディネートします。

受付:10:00~18:00(定休日を除く)

0833-41-6161

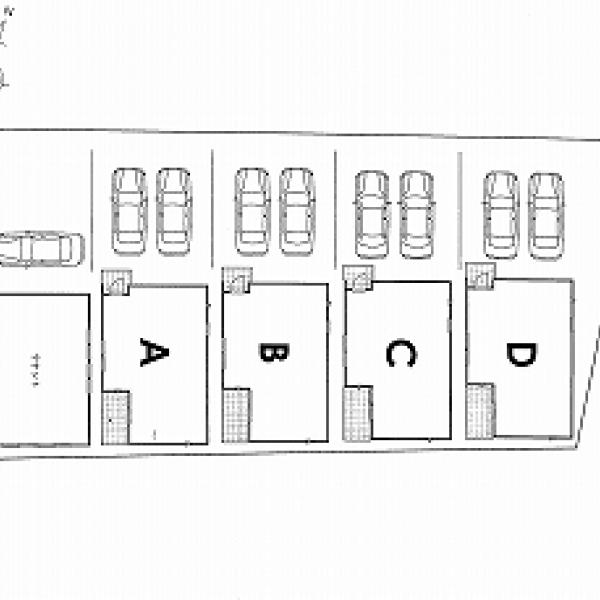
賃貸 一戸建て - カシータ室積新開 C棟 -

 
賃料

7.6万円

間取り・築年数

3LDK

2011年5月 (築14年)

部屋番号:C

その他諸経費

共益費:3,000円

敷金:2ヶ月

礼金:なし

仲介手数料:必要

住所・交通・学区

光市エリア

山口県光市室積新開2丁目12-11

学区:室積小学校 室積中学校

JRバス 西新開バス停 徒歩1分

駐車場

駐車場有

2台分賃料込み

印刷 物件お問い合わせ お気に入り追加
物件ID: 933  管理番号: 933

電気:中国電力

水道:公営水道

ガス:個別プロパンガス

雨水:側溝

汚水・雑排水:公共下水道

取引態様
仲介
現況
空家
引き渡し
相談
構造材質
木造2階建
建物面積
81.35㎡(約24.60坪)

特記事項

・ケーブルテレビの視聴をご希望の場合、別途利用料が必要です。・自治会への加入が必要です。・ご契約時に家賃保証契約締結が必要です。